Aluminium Fruit Cage L Shaped - Bespoke Design
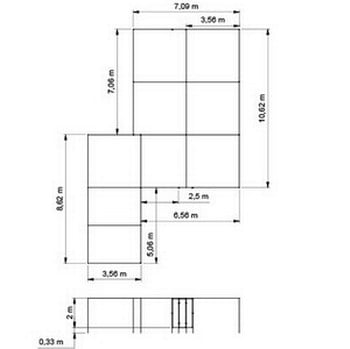
This L shaped bespoke design Aluminium Fruit Cages is 15.68m long overall by 10.12m at the widest point wide, narrowing to 7.09m at one end and 3.56m at the other, the kit comprises 45 aluminium tubes in various sizes, 19 connectors and 2 door kits and assembly packs
Read More
The framework of this bespoke L Shaped Aluminium Fruit Cage is made from 25mm diameter, 1.6mm thick aluminium uprights and carries a 10 year guarantee. The fruit cage has flush fitting connectors, extra heavy duty 16mm x 16mm square mesh side netting and heavy duty, 20mm x 20mm diamond mesh anti-bird roof netting.
This staggered L shaped bespoke design is 15.68m long overall by 10.12m at the widest point wide, narrowing to 7.09m at one end and 3.56m at the other. The fruit cage kit comprises 45 aluminium tubes in various sizes, 19 connectors and 2 door kits with assembly packs and full instructions.
- Bespoke Aluminium Fruit and Vegetable Cage stand 2.0m above the ground
- The Aluminium tubing is inserted 0.3m into soil
- Toprods are secured with flush fitting connectors
- Framework carries a 10 year anti-corrosion guarantee
- Comes complete with 16mm square mesh side netting and 20mm Anti-bird roof netting
- The doors can be fitted on any side and extra door kits are available separately
- For very soft soil additional foot plates can be supplied
- Braces are available to give additional strength in exposed or windy locations
- This product is supplied as a kit for self assembly
- We recommend removing the netting over winter to prevent any potential damage from heavy snow and high winds
Our Expert Design Team have previously created a Large Angled Aluminium Angled Fruit Cage in a bespoke design to an individual customer's requirements. This Angled Aluminium Fruit Cage-Bespoke Design is not available to buy online - please contact our made to measure team for more information and to place an order:-
email - madetomeasure@harrod.uk.com
phone - 0333 400 1444
Standard size aluminium fruit cages are also available.
















